经批准,现将莆田文化创意产业园B栋1-3层商业房产对外公开征集意向承租人,公告具体内容如下:
一、标的物概况
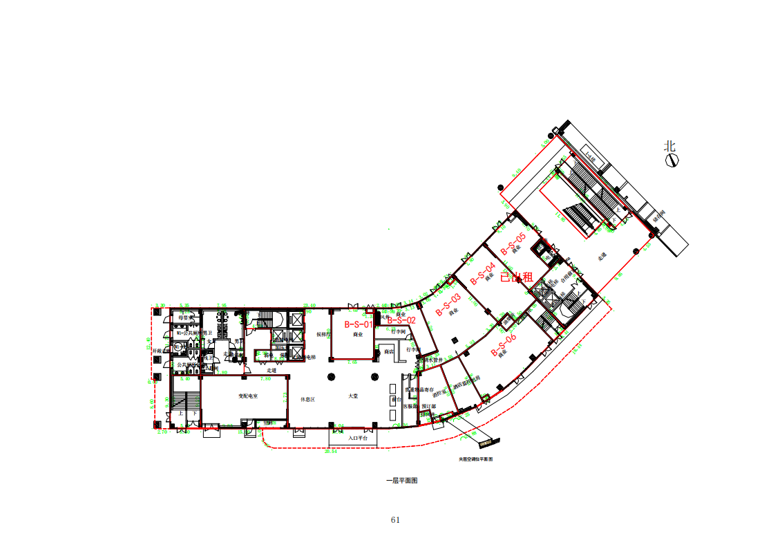
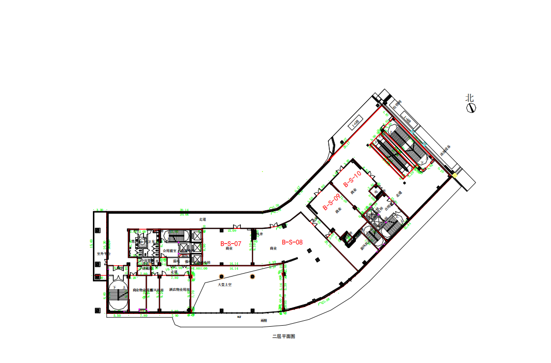
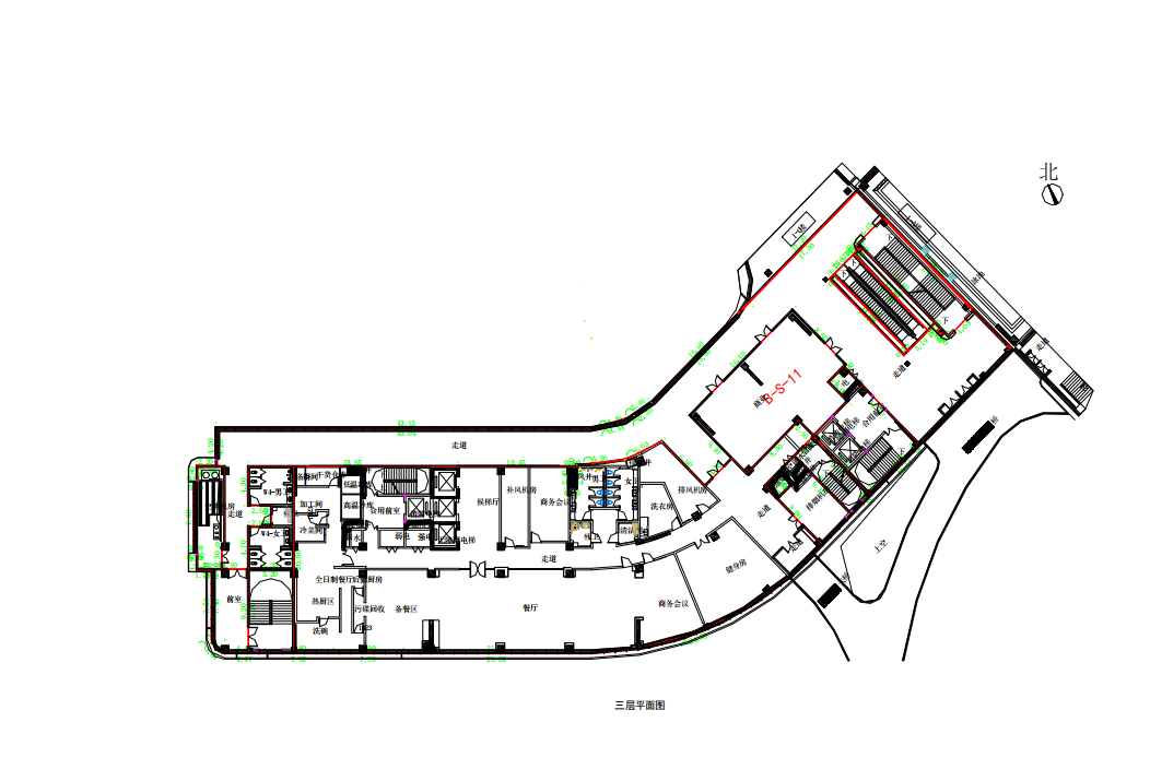
标的房产位于福建省莆田市秀屿区笏石街道展兴路369号莆田文化创意产业园B栋1-3层商业区域,共9坎毛坯店铺,房产总面积约为1180.26㎡(套内面积),具体如下:

二、招租要点
1.投标人资格:中华人民共和国境内企业法人组织、具有独立承担民事责任能力的其他组织或者完全民事行为能力的自然人;具有良好的财务状况、支付能力;具有良好的商业信用;国家法律、行政法规规定的其他条件。
2.租金单价:
本次公开招租,序号1-4房产竞租底价为 28元/㎡·月起、序号5-9房产竞租底价为17元/㎡·月起,租金仅含税费,不含物业、水电等其他任何费用。
3.租赁期限:3年。
4.租金及支付方式:租金以建筑面积乘以中标价计算,通过现金交纳或转账方式按月支付;自第二计租年度起,租金在上一计租年度的基础上年递增1%,租金仅含税费,不含水电费、物业费、卫生费等其他任何费用。免租期一个月。
5.租赁押金:上述房产租赁押金以中标最后一个计租年度的三个月租金总额收取,租赁押金须于签订租赁合同前交纳,合同有效期届满后或终止后,由承租人向招租人提出退还租赁押金的书面申请,在承租人已归还该租赁标的,并结清房租、水电费、物业费等各项应付费用且无其他未了事宜后的15个日历天内,招租人将该笔款项无息退还至承租人账户(该账户须在书面申请中体现)。
6.房产用途:上述房产可作为商业、办公、餐饮娱乐等符合房产性质用途且经法律法规允许及相关部门审批同意的使用范围,但不得用于非法经营活动或影响周边居民工作生活等扰民活动。
三、公开征集公告时间
公开征集公告时间:2026年1月30日至2026年2月12日。
四、投标保证金交纳约定
1.投标保证金金额:本次公开招租标的投标保证金均为人民币叁万元整(¥30000.00)。
2.投标保证金的提交方式:现金(电汇或者银行转账)形式;
投标人应在交纳截止时间之前从投标人所在地银行的投标人账户以电汇或银行转账的形式,汇到招租人指定的以下账户:
户名:莆田市谷多多投资有限责任公司
账号:9040210020010000372576
开户行:莆田市农商银行营业部
3.投标保证金交纳截止时间:2026年2月12日16:00。投标人须在截止时间前足额交纳投标保证金,并在转账汇款时备注 序号X(注明序号)投保金 ,转账汇款完成后务必根据本公告留存的联系方式与招租人核对是否交纳成功,在截止时间前(以到账时间为准)交纳保证金的方视为成功交纳;未在截止时间前交纳或未按约定与招租人确认投标保证金交纳情况的视为无效交纳,投标人须承担因此造成的不利后果。
五、开标时间确认及通知
经招标人确认投标保证金交纳成功的,各意向承租人请主动在公告截止之日(2026年2月12日)后的2个工作日内前往 荔城区荔园中路917号海峡商务中心B栋23层莆田市谷多多投资有限责任公司 领取开标通知书,签收领取完成的视为报名成功。
联 系 人:朱女士 联系电话:7979090
附件:1.公开招租须知
2.授权委托书
3.报价单
4.房产租赁合同(范本)
5.标的房产位置分布图、楼层图
莆田市谷多多投资有限责任公司
2026年1月30日
公开招租须知
本次公开招租活动按照公开、公平、公正的原则进行,招租人特拟定如下须知,请各承租人务必熟读其内容:
1.各意向承租人可自行实地察看了解标的的基本情况。意向承租人交纳投标保证金后,则视为完全了解标的,同意按现状租赁,对标的物的现状、品质、面积、瑕疵、产权状况、物业情况、周边配套、房产配套、设施设备数量、外立面及屋顶状况等均无任何异议,并愿对自己参加租赁的行为负全部责任。
2.开标会开始前半小时内,意向承租人必须提交个人身份证原件、复印件及投标保证金缴款银行对账单;若以单位或企业名义参与投标的须持营业执照副本原件、复印件(加盖公章)、法定代表人的身份证原件、复印件(加盖公章)及投标保证金缴款银行对账单,如法定代表人无法到场,还须提供授权委托书和代理人身份证原件、复印件(加盖公章)。
3.意向承租人必须在规定时间内足额交纳投标保证金,采用现金(电汇或者银行转账)方式交纳的,未中标或未报名成功的由招租人在10个工作日内无息退还,中标的则直接将对应金额转为租赁押金,投标保证金与租赁押金的差额采取多退少补的方式处理。
4.本次招租中标公示期为3-5个工作日,中标结果公示完成,中标人应在接到《中标通知书》后3-5个工作日内,将须交纳的款项转入招租人指定账户,并与招租人签订《房屋租赁合同》(参考附件4),若逾期未交纳全部款项或不签订合同的,按违约处理,招租人有权取消其中标资格,已交纳的保证金作为违约赔偿金不予退还,且由此产生的一切责任由中标人承担。
5.各意向承租人必须自觉遵守招租现场会秩序,不得干扰招租报价工作,更不能有操纵、垄断、恶意串通等违法行为,一经发现,将取消其参加报价资格或承租资格,其保证金作为违约赔偿金不予返还,同时招租人有权追偿意向承租人因上述行为而造成的经济损失。
6.招租竞价方式:
6.1本次招租采取现场报价方式(本次报价一律以月租金单价作为最高报价认定标准,下同),单个标的只接受单个自然人或法人单位投标,投标人需现场确认租赁位置。现场报价活动开始,招租人宣布本标的第一轮竞价的起价及加价幅度之后,参与本标的的投标人开始填写报价单并交给招租人,由招租人公布各投标人中的最高报价,产生本标的的第一轮的最高报价。第二轮以第一轮的最高报价为起价,各投标人以不低于第一轮最高报价进行再次报价,依此类推,直至本标的产生有且只有1名最高报价投标人,且无投标人再进行下一轮报价的,视为本标的最后一轮报价,最终最高报价者即为本标的的中标人。
6.2投标人填写报价单时,报价须不低于公布的最低限价,加价部分须是招租人宣布的加价幅度的整倍数,所填报价大小写不一致时以大写为准。投标人须认真填写报价单,报价单填写不明、涂改、未签字的,取消其投标资格。投标人一经报价,不得以任何理由反悔,否则按违约处理,已交纳的保证金作为违约赔偿金不予退还,并按规定追究其经济法律责任。
6.3开标会当天,经审查合格的单个标的的投标人只有一家的,其报价不低于最低限价的,则该投标人即为中标人
7.特别说明
7.1若承租人为中华人民共和国境内企业法人组织,须将法定代表人作为共同承租主体。
7.2投标人递交投标保证金即视为投标人同意本次公开招租公告及有关附件的全部内容,中标后,须在约定时间内与招租人签订《租赁协议》及《治安、消防安全管理责任书》。
8. 本须知与附件租赁协议条款内容不一致的,以协议为准。
莆田市谷多多投资有限责任公司
2026年1月30日
授权委托书
莆田市谷多多投资有限责任公司:
兹委托 ,身份证号码: ,作为我的合法代理人,全权代表我参与贵公司 的相关事项,对委托代理人在办理上述事项过程中所签署的有关文件,我均予以认可,并承担相应的经济及法律责任。
委托期限:自签字之日起至该招租事项办理完毕为止。
投标人(盖章):
法定代表人:
委托代理人:
年 月 日


房产租赁合同(范本)
甲方(出租方):
地址:
乙方1(承租方):
地址:
乙方2(承租方):
甲、乙双方经充分协商,同意就 房产租赁事项签订本合同,以资共同遵守。
一、通用条款
第1条 房产租赁的基本约定
1.1甲方对本房产进行出租。甲方保证对出租房产拥有完整的产权,其有权独立将房产出租给乙方用于本合同约定之用途。
1.2 乙方已经确认该房产的面积(含公摊),对房产的租赁面积没有异议。
1.3乙方在签署本合同前已进行现场勘查并知悉现场状况(包括附属设施、设备、陈设等处于正常使用状态),对该房产现状及外墙已安装的标识或广告现状没有异议。
第2条 房产的交付和归还
2.1在租赁房产时,甲方应在合同约定的日期将房产交付乙方,甲方应提供《附属设施、设备、陈设交接清单(若有)》,乙方需对清单进行确认,无误后双方在清单上签章确认。
2.2合同期满时或合同提前终止,乙方需在合同期满或合同提前终止截止日前将房产归还甲方。
2.3乙方归还房产时,已附合的装饰装修物归甲方所有,且甲方对此不予以任何补偿或赔偿,乙方不得因此肆意破坏装修现状;乙方应按《附属设施、设备、陈设交接清单》(若有)与甲方进行移交,若发现设施、设备、陈设等被损坏或遗失(自然损耗除外),甲方有权要求乙方赔偿损失,亦有权直接从租赁押金中扣除,如租赁押金不足以赔偿损失甲方的,甲方有权要求乙方补足差额。
第3条 租金、租赁押金及其它费用的约定方式
3.1租金按月交纳,乙方应当在每月的 号前交纳当月租金,交纳后的10个日历天内,甲方开具正式的含税发票。
3.2乙方应按约定向甲方交纳租赁押金。租赁押金仅代表乙方将该费用存放在甲方处确保自己的行为不会对甲方利益造成损害,如果造成损害的,乙方可以以此费用据实支付、抵扣或另行赔偿,若发生据实支付、抵扣或另行赔偿行为后,双方选择继续履约的,乙方应当在甲方要求的期限内补足(合同约定总额)租赁押金;在双方法律关系不存在且无其他纠纷后,则无息退还剩余的租赁押金,若发生违约时将会被扣除。租赁押金不作为预付租金,仅作为乙方履行本合同所约定义务的保证之用。
3.2.2需退还租赁押金时,由乙方向甲方提出退还租赁押金的书面申请,甲方在收到申请并确认乙方已缴清所有费用、归还该租赁房产且无其他未了事宜后,将剩余租赁押金无息退还至乙方指定账户(该账户需在申请书体现)。
3.3乙方应将租金和租赁押金汇至甲方指定的收款账户:
甲方开户名:
开 户 行:
账 号:
甲方指定收款账户如有变更的,将另行通知乙方。
3.4 承租期间,乙方应按相关规定向有关单位交纳物业管理费、车位管理费、水、电、卫生、能源等费用以及因乙方经营活动而产生的政府税费及其他应付费用(如网络通讯费、电话费、燃气费等),若因乙方怠于履行上述支付义务导致甲方遭受损失或代为缴付的,甲方可向乙方追偿且由乙方承担全部损失赔偿责任。
第4条 双方的权利义务
4.1 甲方的权利义务
4.1.1非乙方造成的房产主体结构问题由甲方终身负责维修。
4.1.2甲方不得对乙方正常合理使用该房产进行干扰或妨碍。
4.1.3在合同期内,甲方如需在该房产内对其所有的设施设备进行维修,须事先通知乙方,乙方应积极配合。
4.1.4租赁期间,甲方如因企业改制、产权划转等原因需收回上述房产,至少应提前30日历天通知乙方,乙方须无条件予以配合。
4.1.5租赁期间,乙方因办理业务需甲方的基本材料,甲方予以配合提供。
4.2 乙方的权利义务
4.2.1 租赁合同签订后,乙方即可自行进入租赁房产进行装修改造,装修改造费用均由乙方承担,甲方对此不予以任何补偿。装修安全责任由乙方自行负全责。为便于统一管理,乙方应当主动将装修改造方案报备甲方。
4.2.2乙方的装修改造不得破坏租赁房产的主体结构,不得搭建构筑物,否则甲方有权根据本合同第6.2条约定执行,且追究乙方因此产生的一切责任。若因乙方违法违约装修改造,在租赁有效期限届满或本合同解除终止后,甲方为了恢复租赁标的原状而引起的一系列费用及责任均由乙方承担。
4.2.3乙方的经营活动须经相关部门审批,与此相关的审批手续及费用由乙方自行负责。按照“谁使用谁负责”,乙方对租赁房产的使用及管理应符合相关的法律法规规定,租赁期内的用电、用水、人员及财产等一切安全责任问题及有关费用均由乙方负责承担,与甲方无关。
4.2.4乙方如要求在外墙安装标识或广告,必须事先取得政府有关主管部门同意后方可自费安装和维修该标识;乙方应对其安装与放置的标识或广告承担全部责任,与甲方无关。
4.2.5承租期间的安全生产、消防管理、门前三包及治安综合治理、房产安全防护等均由乙方自行负全责,产生的费用也由乙方承担。乙方必须无条件服从甲方及有关安全生产管理部门的安全督察,严禁在承租房产内设置“三合一”场所(三合一:人员住宿场所与加工、生产、仓储、经营等场所在同一建筑内混合设置),发现安全生产隐患问题需及时整改,并按相关规定承担责任。乙方接受该房产按现状交付使用并同意就房产交付后的办公人员、财产安全问题进行管理,乙方及其共同办公人员发生的一切人身、财产损失和责任以及乙方承租期间给第三人造成的人身财产损失及责任均由乙方承担。
4.2.6 乙方在租赁期间,未经得甲方书面同意,不得将本租赁房产转租、转借、转让、抵押或变相买卖使用权,也不得改变房产的使用用途。
4.2.7乙方应科学合理使用租赁场所及其附属设施、设备,承担其日常维护、保养及保洁,确保该租赁场所及配套设备设施处于正常的可使用状态。乙方须自费采取预防措施,以防止白蚁、老鼠、蟑螂或其它害虫或寄生虫在该房产任何部分内滋生。
4.2.8乙方在承租期间,应向甲方按月缴纳如下费用:物业管理费2.2元/㎡·月、水电能耗费用(按照园区分摊结算)、车位管理费50元/个·月等。
4.2.9租赁期间,乙方须同意(若需)甲方因经营需要将租赁房产用于抵押贷款融资并出具相关证明材料。
4.2.10如乙方因自身经营原因确需提前终止租赁合同的,乙方应当至少提前90日历天书面通知甲方,经双方协商一致后,可解除本合同,租金据实结算,已交纳的租赁押金无息退还乙方;否则视同乙方违约,已交纳的押金作为违约赔偿金不予退还。
第5条 双方的违约责任
5.1 甲方的违约责任
5.1.1甲方不及时履行本合同约定的维修、保养责任,致使该房产毁损、灭失,造成乙方财产损失或人身伤害的,甲方应承担赔偿责任。
5.2 乙方的违约责任
5.2.1乙方须按本合同第3.1条和第12.1条约定交纳租金。若乙方逾期交纳租金超2个月的,甲方有权采取停止供应相应能源或其他设备的措施进行制约;若乙方逾期交纳租金超3个月的,甲方有权按本合同第6.2条约定执行。
5.2.2乙方须按本合同第2.2、2.3条约定履行房产归还义务,且截止最后归还时限后,甲方有权未经乙方同意,进入房产处理现场,所有物品归甲方所有,甲方有权向乙方追索遗留物品的处理费用(含搬运费、垃圾处理费、清洁费、劳务费等)。
第6条 合同的变更和解除
6.1甲、乙双方同意有下列情形之一造成本合同无法继续有效履行的,本合同终止,视为双方互不违约;租金据实结算后,乙方已交纳的租赁押金及已交纳但尚未使用的租金无息退还,如有对承租方的相关补偿政策,相应的收益归乙方所有:
6.1.1该房产占用范围内的土地使用权依法提前收回的;
6.1.2 该房产因社会公共利益被依法征用的;
6.1.3 该房产因政策性调整(含拆迁)等行政原因的;
6.1.4该房产毁损、灭失或者被鉴定为危险房产的;
6.1.5其它不可抗力的因素。
6.2甲、乙双方同意,乙方有下列情形之一的,甲方可书面通知乙方,并有权单方解除本合同;乙方已交纳的租赁押金及乙方已交纳但尚未使用的租金均不予退还;如果租赁押金及尚未使用的租金不足以弥补因此给甲方造成的损失的,乙方应补足甲方损失额与违约金之间的差额:
6.2.1未征得甲方书面同意改变该房产的结构、系统造成该房产主体结构、系统损坏或系统运转故障的。
6.2.2 将该房产用于任何非法目的或未经由甲方同意对外转租、转借、转让、合作等改变原独有承租方身份情形的。
6.2.3未征得甲方书面同意改变该房产用途的;
6.2.4 乙方未按合同4.2履行乙方的义务,或乙方无法履行或履行不到位的。
6.2.5违反本合同的其他约定,给甲方造成损失的;
6.3甲、乙双方同意,因甲方原因造成下列情形之一的,乙方可书面通知甲方,并有权单方解除本合同;租金据实结算后,乙方已交纳的剩余租赁押金及已交纳尚未使用的租金无息退还,且产生的一切责任由甲方承担:
6.3.1因甲方原因该房产被司法机关或者主管行政机关依法查封,致使该房产整体停业连续超过30日历天的;
6.3.2该房产违反本合同签订时的现行法律、法规关于房产使用条件强制性规定,经主管行政机关查处,在规定期限内甲方仍未整改完毕的;
6.3.3该房产权属有争议,且异议人提出了必要的证据,致使乙方在该房产停业连续超过30日历天的。
第7条 通知送达
7.1对于任何通知或联络,如直接交付,则在接收一方或其代表(含法人和授权人)签收时视为收讫;如果通过国内或国际快递方式邮寄,则在寄出3个日历天后被视作已收讫;如用挂号信邮寄,在寄出3个日历天后视为收讫。
7.2双方约定本协议所约定地址为相关司法文书、材料等的送达地址,一经邮寄寄出3个日历天后即视为送达,一方若指定其他地址或地址变更,须于变更后10日历天内以书面形式通知另一方。怠于通知的一方应当承担对其不利的法律后果。
第8条 合同的效力及承诺
本合同的附件是本合同不可分割的一部分,与本合同具有同等法律效力。当本合同约定与本合同现有的附件内容存在不一致或冲突的情况,以本合同的约定为准。
第9条 适用法律与争议解决方式
9.1本合同构成甲乙双方就有关本合同所涉事项的全部内容,并且取代有关本合同所载的各事项先前的所有口头及书面协议、函件。
9.2本合同适用中华人民共和国法律。双方在履行本合同的过程中若发生争议,甲、乙双方应首先通过协商解决,协商未果的,可向租赁房产所在地人民法院提起诉讼。
第10条 其他
本合同经甲、乙双方的法定代表人或授权代表签字并加盖公章(如乙方为自然人的,则须自然人本人签字并捺印)时生效。若本合同签署前该房产已交付,则本合同效力溯及至该房产的实际交付之日。
二、专用条款
第11条 标的情况和用途
甲方出租的房产坐落于 ,建筑面积约 平方米(含公摊面积),出租给乙方作 使用。
第12条 房产的租金、租赁年限及免租期
12.1本次租赁租金采取 方式:自租期第 年起每年租金较前一年度租金递增 %;
计租 年度 | 时间跨度 | 租金单价 (元/㎡·月) | 月租金 (元) |
第1年 | |||
第2年 | |||
第3年 |
12.2租金按月交纳,乙方应在每月的 号前交纳当月租金,交纳后的10个日历天内,甲方开具正式的含税发票。
12.3租赁押金为最后一个租赁年度的 倍月租金总额,本次租赁押金为人民币(大写) 元(¥ )。
12.4本合同明确租赁期限为 年。
12.5本次房产租赁免租金装修期为 个月。
12.6房产在本合同签署之日已交接完毕,乙方无异议。
第13条 双方信息及联系方式
甲方营业执照统一信用代码:
甲方联系电话:
甲方联系地址:
乙方营业执照统一信用代码(或身份证号):
乙方联系电话:
乙方地址:
第14条 附件及其它
14.1附房产区位详图(若有)
14.2《附属设施、设备、陈设交接清单》(若有)
14.3治安、消防安全管理责任书
第15条 本合同一式陆份,双方各执叁份,具有同等法律效力。
(以下为签署内容)
甲方(盖章): 乙方(盖章):
法定代表人(签章): 法定代表人(签章):
联系电话: 联系电话:
合同签订时间: 年 月 日
特别提示: 承租者,当你签订本责任书前,请仔细阅读本责任书条款及涉及到的相关规定,因为你与谷多多投资公司签订本责任书后,双方应以这些条款为根据,全面、实际履行。如果你对本责任书某一条款不明确或不理解,请让谷多多投资公司向你解释,责任书一经签订,视为你已经全面了解本责任书条款和责任书中涉及到的相关规定。 |
治安、消防安全管理责任书
甲 方 (出租方):
乙 方1(承租方):
乙 方2(承租方):
为落实租赁房产双方的治安、消防安全责任,确保甲、乙双方的人身和财产安全,根据《中华人民共和国消防法》和《中华人民共和国治安管理处罚法》等法律法规的规定,为了做好租赁房产“防火、防盗、防破坏、防治安事件”的工作,甲、乙双方特签订本安全管理责任书,进一步明确双方的治安、消防安全责任,具体如下:
第1条 消防工作
1.1 乙方为所承租房产的治安、消防安全第一责任人,应自觉遵守治安、消防管理规定,增强防范意识,重视防火、防盗、人员出入以及其他治安、消防安全工作。
1.2 乙方中途更换责任人,需另行签订《治安、消防安全管理责任书》;乙方更换责任人未及时通知甲方及未重新签订《治安、消防安全管理责任书》的,由乙方承担责任。
1.3 乙方不得将易燃易爆、腐蚀品、放射性等有毒有害物品带进租赁房产,不得危及小区安全和他人的人身财产安全,不得阻碍区域消防通道。妥善处理日常垃圾中的易燃物品。
1.4 严禁擅自移动、拆卸消防设施器材,乙方及共同使用人应熟记区域内消防设施、器材的位置、数量并掌握操作要领,并熟悉消防安全通道、防火门的走向位置。当火警发生时应保持镇定,并在第一时间通知消防部门,然后积极展开安全自救工作。
1.5 乙方对所承租房产的用电等安全负完全责任。要注意用电安全,严防触电和各类电器火灾。不得私自乱拉乱接电线;人员离开时要关闭电源总开关,检查是否遗留有未熄灭的烟蒂等火种,停电时应切断电源开关;发现供电系统过热、有异味、冒烟等不安全情况,应立即切断电源并及时维修。
第2条 治安工作
2.1 乙方严禁在租赁房产内从事赌博、吸毒、传播淫秽物品、传销、反政府等违法犯罪活动,乙方自行承担一切后果。
2.2 乙方应加强防盗工作,采取必要的防盗措施。如发生失盗案件,乙方应保护好现场,并报告公安部门处理,乙方自行承担一切后果。
2.3 乙方不得存放、携带、使用国家明令禁止的管制刀具、枪械等物品。
2.4 乙方应关好门窗做好防盗措施;不得让未成年人在租赁房产内单独逗留。
2.5 乙方负责督导租赁房产共同使用人严格执行治安、消防安全规定,杜绝火灾、人身安全等隐患发生。
2.6 因乙方未全面履行治安、消防、人身安全责任(包括过失、故意等)所引发的人身安全、火灾及治安事件,由乙方承担由此所造成的一切经济及法律责任。对甲方的经营及名誉造成损害的,由乙方承担经济损失,并支付相当于租赁押金1倍(或最后一个租赁年度的3倍月租金总额)的违约金,并承担精神损害赔偿责任。
第3条 本责任书未尽事项,由双方协商补充;协商不成的,按国家的有关法律法规执行。
第4条 因本责任书引起的纠纷由租赁房产所在地人民法院提起诉讼。
甲 方: 乙 方1:
乙 方2:













编辑者:闽小房莆田
分享到: